Продажа коммерческих объектов
- С новых
- С популярных
- С дешевых
- С дорогих
Здание 500 м2
90 000 р.30 169 $
16 октября, 10:03
Продается комплекс нежилых зданий по адресу: Гродненская обл, г. п. Кореличи, ул. Фоменко, 1.
Можно как организовать любой вид бизнеса в нем, так и сдавать в аренду частями (3 раздельных здания).
- Коммуникации: электричество, вода, канализация.
- Собственная котельная с твердотопливным котлом.
- Все помещения с ремонтом: штукатурка стен, натяжные потолки, полы из линолеума и плитки, пластиковые окна, металлические двери.
- Отдельное здание для проживания сотрудников: 3 жилые комнаты, кухня и санузел.
- Хозяйственные помещения.
Продает собственник, не агентство, звоните по телефону или пишите. Торг реальному покупателю
Офис с арендаторами продаю
222 248.40 р.74 500 $
13 октября, 14:53
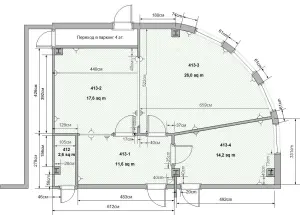
Продается офис с арендаторами от собственника в современном бизнес-центре по ул.Мележа, 5 корп. 2. Площадь 72 м*2. Четыре комнаты 11,6; 17, 6; 26; 14, 2 + туалет 2, 6 м*2. Хорошее дизайнерское освещение, вентиляция, отопление. Четыре телефонные линии, интернет. Стеклянные перегородки, евроотделка. Два входа, переход в паркинг. Рядом два паркинга, 5 зон для парковки, минимаркеты, торговый центр, аптека, отделение банка, остановка автобуса 24.
магазин площадью 235м.кв
105 750 р.35 449 $
7 октября, 21:44
Продаётся здание розничной торговли - магазин площадью 235м.кв., 1-этажный блочный, 2013г.п.: торговый зал, склад, комната для персонала, кабинет, санузел, удобная рампа для загрузки и выгрузки товара, с ремонтом. Центральные коммуникации. Окна ПВХ, стены штукатурка, пол плитка, потолки подвесные, высокие - 3,37м, установлено видеонаблюдение и пожарно-охранная сигнализация. Два отдельных входа: центральный и с обратной стороны здания для удобства клиентов и персонала. С собственным двориком. Земельный участок площадью 0,0916га, на праве аренды до 2097 года. Имеется большая парковка для автомобилей. Прекрасное расположение магазина, на оживлённой улице с отличным пешеходным и автомобильным трафиком, хорошие подъездные пути. Здание полностью готово к использованию для коммерческой деятельности. Рассматривается аренда помещений.
Торг уместен!!! Быстрый выход на сделку.
Продажа магазина
Цена договорная
23 сентября, 10:11
Продается действующий продуктовый магазин в жилом доме по адресу Ф.Скорины, Уручья.
Площадь магазина 30 км , небольшой склад, сан узел. Имеется кабинет (можно использовать, как торговую площадь).
Магазин расположен в удобном месте с высоким трафиком жителей.
Аренда частная
Лицензия на продажу табака и слабо алкогольных напитков.
Торговый зал оборудован кондиционером. Имеется видео наблюдения. Есть стеллажи для товаров. Холодильник для напитков, пиво , мороженого и для замороженных продуктов, а также большая холодильная камера. Кассовый аппарат.
Склад офис можно под другие цели или виды услуг
от 21 479.04 р.7 200 $
3 сентября, 10:47
Помещение под любой вид деятельности или склад. Находтся по внешней стороне МКАД. Ориентир улиц Рафиева, Слободская, Громова. Торгово выставочный комплекс АвтоМолл - Кольцо (Авторынок Малиновка). возможно продажа в рассрочку или по договоренности через лизинговую компанию.
Продам помещение 52,6м2 1 этаж отдельный вход Каменногорская 88
Цена договорная
19 августа, 17:48
Продам административное помещение по адресу: Каменногорская 88
Единственное предложение в этом районе на данный момент с отдельным входом на 1 этаже до 80 м2 с собственным су, в месте с высокой проходимостью. Площадь 52,6м2
Идеально для создания успешного бизнеса.
Преимущества:
• Место с высокой проходимостью, оживленный перекресток в густонаселенном районе Каменная горка
• Удачная развязка. Выезд без пробок на МКАД.
• Рядом удобная, бесплатная парковка.
• Отдельный вход, что обеспечивает для клиентов доступ 24/7.
• Сырости и насекомых нет.
• Перепланировок нет.
• Остановки общественного транспорта: Каменная Горка-4; Налибокская; Лидская; Люцинская:
Автобус: 41, 42, 181С, 128, 184С, 188С, 60, 185С, 121Д, 149.
Троллейбус: 52, 21.
Метро: Каменная горка 5 мин на авто, 6 остановок общественный транспорт.
• Вся инфраструктура в шаговой доступности . Находится на пересечения трафика к остановкам транспорта, магазину Маяк, ОМА.
• Без обременений.
• Все, что нужно для работы.
Подробнее по телефону(вайбер, телеграмм)
Продам помещение
16 000 р.5 363 $
15 августа, 10:52
Помещение 49кв. продам или сдам в аренду 4 комнаты (промзона "пчёлок") г . Ошмяны, ул, Я. Коласа,3
Отдельностоящий одноэтажный павильон
Цена договорная
12 августа, 10:18
Продам отдельностоящий одноэтажный павильон (магазин) с землей в Борисове.
Особенности:
- В павильоне сделан хороший ремонт;
- Окна и двери оснащены надежными роллетами;
- Павильон находится в спальном районе (большая проходка);
- Площадь застройки - 34,8 квадратных метра;
- Общая площадь - 32,2 квадратных метра;
- Полезная площадь - 25,34 квадратный метра;
- Уровень ответственности здания - III;
- Коэффициент надежности - 0,95;
- Степень огнестойкости - VI.
Торговый павильон расположен в городе Борисов, по улице Н.Неман в районе жилого дома №12.
ПРЯМАЯ ПРОДАЖА ОТ СОБСТВЕННИКА
Магазин
от 62 000 р.20 783 $
5 июля, 12:28
Отопление, хороший подъезд авто,380в. Естественное освещение.290м.кв.
Помещение под офисы . г. Брест
208 824 р.70 000 $
29 апреля, 20:10
Помещение под офисы площадью 88,9м2 (коридор, 4 кабинета, бытовка), ремонт не требуется. г. Брест, ул Куйбышева, 13
Здание Светлогорск
178 992 р.60 000 $
27 марта, 19:45
Продам здание недостроенное. Все стены в задании отштукатурены. Требует вложений, сил и времени.
Коммерческое помещение в центре Гродно
7 010.52 руб/м²2 350 $
23 марта, 11:19
Продается коммерческое помещение в престижном районе.
Адрес:
Гродно ул.Виленская 1
Расположение:
В шаговой доступности от ЦУМа
Рядом со Швейцарской долиной и площадью Ленина
Вблизи ул. Советской
Особенности объекта:
Площадь помещения 95.1 кв/м
Выгодное расположение в центре города
Дополнительное преимущества:
Арендатор с действующим баром "Лондон" на долгосрочном договоре
Стабильный доход от аренды
Возможность быстрого начала бизнеса
ВНИМАНИЕ!!!
Если мне нужен будет риэлтор, у меня есть к кому обратиться
Ларёк
3 579.84 р.1 200 $
1 марта, 14:29
Есть счётчик,свет, подсветка внутри, снаружи.
Окно ПВХ.
Перевозной.
В хорошем состоянии.
Продажа помещения
Цена договорная
25 февраля, 13:37
Продаётся помещение с многофункциональным разрешением: офис, парикмахерские услуги, торговый объект. Имеется отдельный вход по проспекту Черняховского , 5, в г. Витебске, общей площадью 72.6 кв. м. со всеми коммуникациями, высота потолка-2,70 м. Помещение расположено вначале проспекта ( 3-й дом от площади Победы), напротив общественная остановка, активный пешеходный трафик.
Для получения дополнительной информации звонить с 10:00 - 18:00.
Офис 25,7 кв.м в центре Минска у метро Молодёжная
125 294.40 р.42 000 $
23 января, 12:50
Московский район, Харьковская ул., д. 15, кирпичное 3-хэтажное административное здание 1977 г.п., 1 этаж, высота потолка — 2.8 м, центральное отопление, электричество, с/у (в крыле), подвесные потолки, стеклопакеты (решётки на окнах), встроенные шкафы (2), система видеоконтроля во всём здании, пожарная сигнализация, пошаговая доступность (5-6 мин.) от ст. метро «Молодёжная», две выделенные телефонные линии (возможно — больше), скоростной интернет (оптоволокно), круглосуточный доступ всю неделю. Тихий двор, удобная бесплатная парковка (через дом имеется многоуровневый паркинг), в трёх минутах - недорогая столовая троллейбусного депо, поблизости – магазин «Корона», кафе, салон печати, нотариальная контора и пр. Здание расположено в создаваемом административно-спортивном кластере: через дорогу – многофункциональный бассейн международного класса, а также бизнес-центр (строится второй). Помещение может быть использовано как под офис, так и под иные нужды (магазин-склад, мини-ателье, мастерская, студия, учебный класс, демонстрационный зал, представительство, корпункт, пункт отпуска товара, салон услуг и пр.). Возможна продажа с мебелью.
Продается действующая усадьба на Нарочи
от 1 650 000 р.553 097 $
28 октября 2024, 13:20
Продается действующая усадьба в Нарочанском крае!
Адрес: Беларусь, Мядельский район, д.Гатовичи, ул.Полевая,22.
Рядом три озера, лес-заказник, санатории для оздоровления.
Продажа недвижимости со всей мебелью и наработанной клиентской базой. Доход круглый год. Хорошие отзывы на Google-картах и Яндекс.
В качестве бонуса аккаунт в соцсети на 9 тыс. подписчиков.
В пожизненно наследуемом владении участок 25 соток с ландшафтным оформлением.
На его территории находятся:
1) Главный коттедж площадью 175 м2 из тёсаного руками бревна.
4 спальни, 2 санузла, гостиная, кухня, техническое помещение, погреб 12 м2, крытая и закрытая терраса.
Дом использовался для проживания хозяина усадьбы. При желании всё пространство можно сдавать в аренду.
2) Малый гостевой дом с сауной площадью 65 м2 из тёсаного бревна.
1 спальня, санузел с душевой, гостиная 25 м2 с кухней, сауна, беседка-навес 26м2.
3) Большой отдельно стоящий дом площадью 166 м2 из тёсаного бревна.
4 спальни, 3 санузла (2 с душевыми), гостиная, кухонная зона, 2 балкона, небольшая терраса.
Гараж, совмещённый с недостроенной баней 49 м2 .
3 беседки с освещением по 16 м2.
2 деревянных качелей и песочница.
Отопление газовое, теплые полы, камин.
Канализация местная.
Водоснабжение из скважины с экспертизой качества воды.
Устойчиво работает сотовая сеть и Wi-Fi.
Зарядка для электромобилей.
Все вопросы по телефону либо на элпочту.
При желании можно устроить видеоэкскурсию.
Больше фото и видео в соцсетях по нику Усадьба На Нарочи.
Павильон
Цена договорная
24 октября 2024, 16:57
Продается двойной ролет на Полеском рынке в г. Барановичи, хорошее центральное место
Здание свободного назначения
Цена договорная
1 августа 2024, 18:42
г. Пинск, ул. Достоевского, 28/2 Есть возможность объединить подсобные помещения как на плане
Торговый павильон
Цена договорная
23 июля 2024, 15:52
Продаётся Торговый павильон в центре города на рынке, проходное место, рядом ЖД вокзал и Автовокзал.Все вопросы по телефону.
Магазин
200 000 р.67 042 $
27 июня 2024, 20:22
Продам магазин товаров повседневного спроса 83.6 КВ.м город жлобин
Производственное здание
785 256.67 р.263 226 $
24 июня 2024, 10:06
Объявлен аукцион!
Понижение начальной цены продажи до 80% включительно
Начальная стоимость: 785 256.67 BYN
Все вопросы по телефону.
Продажа коммерческое помещение новое 64 КВ2 в Гродно
5 817.24 руб/м²1 950 $
15 июня 2024, 9:33
Жилой комплекс Купальский
Продается коммерческое помещение в престижном районе.
Адрес:
Гродно ул.Советских Пограничников 57
Расположение:
В шаговой доступности от центра города
Рядом р.Неман
Вблизи Мак, концертный зал филармонии, драмтеатр
Особенности объекта:
Площадь помещения 64кв/м
Выгодное расположение проезжая часть, в жилом комплексе Купаловский. Готовиться проект новой застройки рядом, этим застройщиком.
Дополнительное преимущества:
Помещение сдано под Валдберис в долгосрочную аренду .
Стабильный доход от аренды
Возможность быстрого начала бизнеса
Сигнализация, приточно- вытяжная вентиляция.
Горячая и холодная вода.
Теплощётчик для отопления.
Потолки 3.3 метра.
ВНИМАНИЕ!!!
Если мне нужен будет реэлтор, у меня есть к кому обратиться
Продается торговое помещение в Лепеле
76 071.60 р.25 500 $
30 апреля 2024, 8:55
торговое помещение с ремонтом
магазин
110 414.20 р.37 012 $
16 апреля 2024, 17:16
Отдельно стоящее здание , подходящее под офис, торговое помещение и т.д. Небольшой закрытый дворик, складские помещения 25м2. Возможен обмен на квартиру, автомобиль. Торг.
1 этаж 3-х этажного дома Витебск
238 656 р.80 000 $
16 марта 2024, 20:51
Изолированное помещение с отдельным входом на первом этаже старинного особняка. Выход на улицу Кирова через арки, в пешей близости от Вокзала (250 м). Локация совмещает в себе расположение в тихом зеленом дворике (парковка не перегружена) и соседство с самой оживленной улицей города. Очень высокое транспортное разрешение: изобилие общественного транспорта, наличие инфраструктуры. Автомобильный подъезд возможен с двух улиц: ул. Космонавтов и ул. Димитрова (сквозной). Архитектурные особенности здания идеально подходят для статусных видов деятельности (нотариат, агентство недвижимости, адвокатура, переводческое бюро, образовательная деятельность, другие виды услуг) или для размещения представительств, филиалов или управленческого офиса серьезной компании, не исключено использование под медцентр, стоматологию, логистический или диспетчерский центр. Общая площадь 180 кв.м., высота потолков 3,75 м. Помещение занимает первый этаж трёхэтажного жилого дома и подключено ко всем городским коммуникациям. Назначение: Административно-торговое помещение. Помещение нуждается в ремонте и благоустройстве территории. Здание стоит на капитальный ремонт в 2026 году. Так же можем рассмотреть вариант долгосрочной аренды с последующим выкупом.
Торговый павильон в Атолино
17 600.88 р.5 900 $
11 марта 2024, 19:55
Торговый павильон продажа,сам 36м2
Можно расширить до 80м2
Гостиница г.Лепель Витебская обл.
193 908 р.65 000 $
10 марта 2024, 14:10
Гостиница в г. ЛЕПЕЛЬ Витебской обл.
Комплекс зданий в лесном массиве Витебск
417 648 р.140 000 $
3 марта 2024, 21:39
В продаже комплекс зданий с участком 87 соток, дополнительно есть возможность приобрести 2,5 гектара с лесным массивом в г. Витебске Лятохах.
Хорошее место для вложения инвестиций. Имеется собственный спуск к реке Лучеса, небольшая удаленность от города. Возможность организовать множество бизнес идей, например: - агроусадьбу у живописного лесного массива; - отель; - баню, сауну; - ресторан; - конные прогулки; - мото-вело аренда и т.д.
Торговое помещение
402 732 р.135 000 $
3 марта 2024, 21:34
Общая площадь: 268.9 м2
Помещение расположено на 1 этаже одноэтажной пристройке с двумя отдельными входами. Со свежим ремонтом и витринными окнами. В спальном районе, в соседнем магазине размещен продуктовый магазин « Евроопт» :
• естественное освещение;
• на полу –плитка, стены- покрашены, потолок- армстронг;
• доступ 24/7;
• оптоволоконная сеть;
• естественная парковка.
По дополнительным вопросам - звоните или пишите Viber. WhatsApp. Telegram.
Продам изолированное помещение с отдельным входом в центре г Могилева
235 220 р.78 848 $
6 февраля 2024, 16:34
родам изолированное помещение с отдельным входом в центре г Могилева, ул. Первомайская 1.
Общая площадь помещения 71,3 м2, состоящая из трех кабинетов 19,9 м2, 19,2м2 и 8,5 м2 + сан. узел. Расположено на первом этаже жилого дома и выведено в нежилой фонд.
Хороший ремонт: окна стеклопакеты, на полу плитка, подвесные потолки с освещением. Все коммуникации.
Подойдёт для офиса, магазина, банка, сферы услуг, аптеки, салон красоты и тд.
Самый Центр города. Отличное месторасположение.
Возможна покупка с привлечением кредитных средств.
Продам Здание 10Х10 в Кобрине
Цена договорная
6 февраля 2024, 15:21
Здани.Цена договорная бывшего кафе продам или сдам в аренду
Торговая точка
5 000 р.1 676 $
24 января 2024, 16:38
Продам торговое место в тц скала на первом этаже Яна
Офис
57 060 р.19 127 $
20 января 2024, 16:41
Офис продам (сдам) от собственника в Малиновке-8, вход в офис в любое время суток. Помещение 12,5 кв. метров, отличный ремонт. В нем есть кондиционер, шкаф-купе для одежды и вещей, полка угловая для документов, усиленное освещение, домофон, телефон, видеонаблюдение, интернет, пол ламинат, санузел, стоянка для машин, хорошее транспортное сообщение, юридический адрес, тел. , продам , сдам .
Продажа коммерческой недвижимости
175 580 р.58 856 $
14 января 2024, 22:21
Продается изолированное помещение, (коммерческая недвижимость), расположенное в центральной части города Гомеля по ул.Кирова, 48, на первом этаже 11-ти этажного жилого дома, 2022 года постройки.
К числу несомненных преимуществ следует отнести его местоположение с интенсивно застраиваемой частью города. Есть парковочные места у здания, автобусная остановка, место проходное. Помещение обеспечено электроснабжением, отоплением, вентиляцией, водой и канализацией. Отсутствие ремонта позволяет выполнить планировку помещений под свой бизнес. Площадь помещений 53,8 м2.
Купить торговое помещение, г. Минск, ул. Маркса, 21
Цена договорная
9 декабря 2023, 10:43
Продаётся готовый бизнес со стабильным ежемесячным доходом в самом историческом центре Минска. В помещении располагается уютное кафе и магазин чая и кофе с большим ассортиментом и сопутствующими товарами. Магазин неизменно существует с 2008 года, за прошедшие годы приобрёл репутацию и обширную клиентскую базу. Пару лет назад была изменена концепция, появилось ещё и кафе. За счёт большого пешеходного трафика, наличия в этом районе многочисленных иностранных туристов и гостей столицы увеличилось и посещаемость этого заведения. Ремонт, мебель и оборудование в отличном состоянии и не требует ни каких вложений.
Условия продажи могут быть гибкими, готовы обсуждать
Полное юридическое сопровождение
Звоните! Расскажем, покажем, обсудим)
Вам обязательно понравится!
Магазин, торговый павильон
Цена договорная
20 ноября 2023, 11:14
Продаётся от собственника в а/г Сеница на автобусной остановке торговый павильон. 40 м2, электричество, кондиционер на отопление и охлаждение. Пол - керамогранит. Идеальное место для салона, кафе, шоурума и т.д.
Продам гостиницу, ресторан, кафе, бар в центре Мяделя РБ
250 р.84 $
16 ноября 2023, 15:15
Продам гостиницу, ресторан, кафе, бар в центре Мяделя РБ, Объект в частной собственности.
Находится в шаговой доступности городской пляж озеро Мястро. Второе по площади в Нарочанской группе озёр. Конкуренция в данной локации отсутствует совсем. Все материальные и нематериальные активы входят в стоимость продажи. Имеются договора с поставщиками для бесперебойной работы. Набережная ул., 4В, Мядель.
Бизнес прибыльный, продается в связи с необходимостью уделять больше времени другим объектам в Минске.
6 помещений, площадь 200 м², этаж 1 / 1, год постройки 2017, телефон - 1 телефон, естественное освещение, отопление, 380В, вода - горячая, частная собственность, кондиционер, отдельный вход, оживленное место, парковка, сигнализация, видеонаблюдение, мебель, компьютерная сеть, готовый бизнес.
После продажи готовы оказать содействие и помощь новому владельцу.
Подробности по телефону или при встрече. -Олег
Продаётся или сдаётся в аренду торговое помещение
Цена договорная
13 октября 2023, 18:32
Продаётся или сдаётся в аренду торговое помещение 70 м2.
Находить по адресу: г.Сморгонь, ул. Чапаева д.10
Аренда за за м2.
Продажа Цена договорная.
В наличии: Санузел, Газовое отопление,Парковка,Видеонаблюдение, пожарная сигнализация,Вода,Отдельный вход.
Вопросы все по телефону.
Продается Кафе, г. Мядель
Цена договорная
18 сентября 2023, 13:17
Продается Кафе, г. Мядель, Мядельское напр., 130 км от МКАД
6 помещений, площадь 200 м², этаж 1 / 1, год постройки 2017, телефон - 1 телефон, естественное освещение, отопление, 380В, вода - горячая, частная собственность, кондиционер, отдельный вход, оживленное место, парковка, сигнализация, видеонаблюдение, мебель, компьютерная сеть, готовый бизнес.
Находится в шаговой доступности городской пляж озеро Мястро. Второе по площади в Нарочанской группе озёр. Конкуренция в данной локации отсутствует совсем. Все материальные и нематериальные активы входят в стоимость продажи. Имеются договора с поставщиками для бесперебойной работы.Набережная ул., 4В, МядельБизнес прибыльный, продается в связи с необходимостью уделять больше времени другим обьектам в Минске.
Коммерческая недвижимость в центре города
215 450 р.72 221 $
28 июля 2023, 18:16
Продается коммерческое помещение под офис или магазин на первом этаже 2х этажного дома в центре города Борисова по адресу: пр.Революции-32.
Состоит из двух комнат + санузел.
Площадь 44,5 кв.м.
Помещение выведено в нежилой фонд. Сделан капитальный ремонт с реконструкцией.
Установлены стеклопакеты, электрический защитный входной роллет.
Заменены все коммуникации. Подключены счетчики на воду, свет, отопление.
Перед входом отдельная красивая территория.
Не требует никаких вложений и оформления дополнительных документов для работы в помещении.
Продам торговое помещение 231 м2 1-й этаж в Минске
1 044 120 р.350 000 $
22 мая 2023, 13:20
Продам изолированное нежилое помещение, ул. Бородинская, 31, Ленинский район, рядом камвольный комбинат, жилая застройка. Расположено на 1 этаже в многоквартирном жилом доме.
Общая площадь – 231 кв.м. Назначение - торговое помещение.
Коммуникации: электричество 380В, центральная холодная и горячая вода, отопление, пожарная сигнализация, оптоволокно. Во всех помещениях есть окна. Высокие потолки. 2 входа (центральный и с торца дома). Один с/узел. Парковка возле здания слева, вдоль улицы Бородинской (возле камвольного комбината) и за жилым домом. Круглосуточный доступ.
Продам имущественный комплекс
Цена договорная
18 мая 2023, 12:40
Продается имущественный комплекс из 7 (семи) отдельно стоящих зданий общей площадью 3333 м.кв. Площадь земельного участка 2,4 га. Земли промышленного назначения, аренда 99 лет.Территория ограждена. Вода, газ, 2 частных электрических линии. Имущественный комплекс расположен в Смолевичском районе, Минской области, Республика Беларусь. Полная предпродажная подготовка документов. В настоящее время 75% площадей сдено в аренду. Средняя стоимость 1 м кв -3 у.е. Эффективно используется с 2009года по настоящее время.Кроме помещений в аренду предоставляются земельные участки для строительства временных зданий и сооружений, для стоянки и технического обслуживания грузового автотранспорта от 0,5 га. до 1 га., есть временные сооружения- 2 пилораммы , купольное строение - цех по пошиву биг-бегов из ПВХ. В аренду эффективно сдаются офисные помещения для юридической регистрации предприятий и ИП. Льготная ставка налога при упрощенной системе налогообложения- 5%(земли граничат с агрогородком)
Перспективы развития Строительство Промышленная деятельности Сдача в аренду объектов недвижимости Объект расположен в окраинной части города Смолевичи, Минской области, в промышленной зоне по адресу д.Миколаевичи, ул.Вишневая, 7; Удаленность от трассы М1: 3,5 км; Удаленность от Минской кольцевой дороги: 25,4 км. Удаленность от индустриального парка «Великий камень»: 15 км.
Коммерческая недвижимость
1 000 р.335 $
25 апреля 2023, 10:16
Продается отдельное здание с бизнесом в 100 %-ную собственность! Находится в городе Микашевичи, спальном районе. Парикмахерская работает с 2006 года и до момента. Огромная клиентская база! Отсутствует конкуренция! Нет свободных помещений в данном районе. Здание возможно использовать для любого вида деятельности, особенно для торгового объекта с уличным кафе. Земельный участок отгорожен, озеленен! На электроснабжение, водоснабжение и канализацию имеются строительные проекты. Отопление печное и централизованное, установлен теплосчётчик. Рядом с парикмахерской находятся детский сад, многоэтажные жилые дома, коттеджи. Район планируют застраивать дальше. Основной контингент - молодёжь!
Год постройки здания - 1987
Здание свободного назначения
Цена договорная
8 апреля 2023, 17:12
Здание свободного назначения
Есть возможность объединить подсобные помещения как на плане
Торговый Павильон
4 000 р.1 341 $
1 февраля 2023, 0:38
Продаю торговый павильон на территории "Прудсковский рынок" проходное место . Рядом находится 3 остановки общественного транспорта , а также Шаурмичная.
Продам помещение Молодечно 1-й этаж, отд. вход
81 000 р.27 152 $
23 января 2023, 18:25
Продам торговое помещение в центре, ул. Б.Хмельницкого, 22, отличная проходимость (рядом жилая застройка, нотариальная контора, городской парк, гимназия 10, агентство по гос.регистрации, кафе "Лагуна").
Площадь 12 кв.м., отдельный вход, высота потолков 2, 63.
Электричество, холодная вода, канализация, оптоволокно, БЕЗ отопления.
Назначение - здание специализированное розничной торговли.














































































































































































