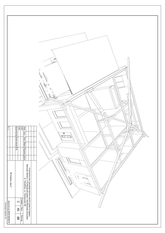
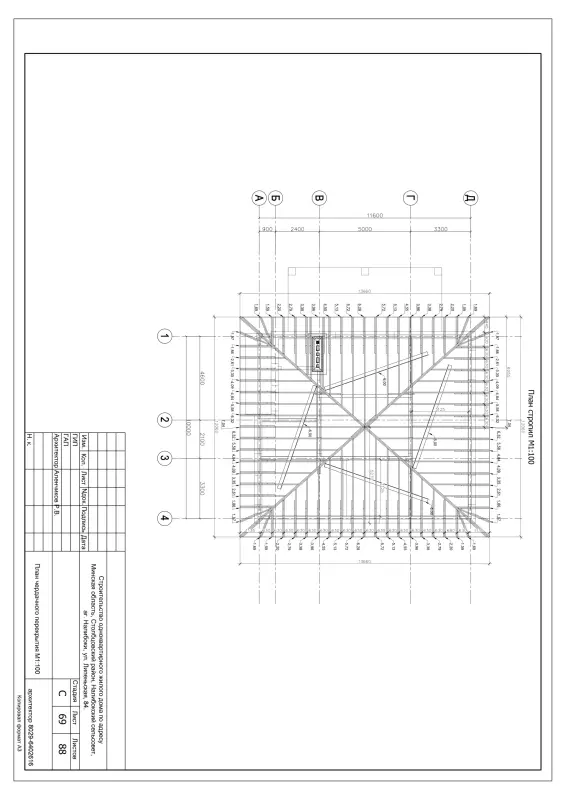
проект 757 дома с 4 спальнями, 100м2 стропильная система кровли, ведомость леса для лесхоза 239577
АРХИТЕКТОР
продам проект с 4 спальнями, всего 100м2 (значит не дорогой в строительстве)
проект дома для постоянного проживания выделяется своей оргономичностью (большие спальни, большая гостиная), но нет коридоров (не нужных площадей), потому достигли площади как для трехкомнатного дома
больше проектов по запросу готов отправить в вайбер
задать вопрос по проекту можно по телефону или написать в вайбер
4-ю спальню можно использовать как отдельную кухню или как мастерскую, или как кабинет для работы, или большую гардеробную
продам готовый проект со скидкой или внесу правки за доплату. а также, индивидуальное проектирование частного дома и хоз. постройки
бесплатная консультация архитектора. записаться на встречу можно по телефону
архитектор Минск, Уручье (также работаем со всеми городами в Беларуси онлайн. проект в вайбер и почтой бумажный экземпляр)
продам проект с 4 спальнями, всего 100м2 (значит не дорогой в строительстве)
проект дома для постоянного проживания выделяется своей оргономичностью (большие спальни, большая гостиная), но нет коридоров (не нужных площадей), потому достигли площади как для трехкомнатного дома
больше проектов по запросу готов отправить в вайбер
задать вопрос по проекту можно по телефону или написать в вайбер
4-ю спальню можно использовать как отдельную кухню или как мастерскую, или как кабинет для работы, или большую гардеробную
продам готовый проект со скидкой или внесу правки за доплату. а также, индивидуальное проектирование частного дома и хоз. постройки
бесплатная консультация архитектора. записаться на встречу можно по телефону
архитектор Минск, Уручье (также работаем со всеми городами в Беларуси онлайн. проект в вайбер и почтой бумажный экземпляр)
Посмотреть на карте
Расположение на карте
Адрес: деревня Романовичи, Улуковский сельсовет
Для отображения карты на странице объявления, в соответствии с требованиями Закона о защите персональных данных, Вам необходимо принять сохранение cookie на вашем устройстве.
Данные о характеристиках, комплекте поставки и внешнем виде товара заполняются продавцом и носят справочный характер.
Предложения на kupika.by не являются публичной офертой. Точную стоимость и условия поставки товара или оказания услуги уточняйте у продавца.






















